Hotel Baltic Park Molo w Świnoujściu - II nagroda w konkursie architektonicznym
Widoczne w dalekich perspektywach, zarówno od strony lądu jak i z morza, budynki kompleksu Baltic Park Molo nawiązują swoją architekturą do majestatycznych żaglowców, których miękką fakturę i wybrzuszające się kontury maluje na tle nieba słońce i wiatr. Komponowana z poziomych warstw tektonika projektowanych obiektów jest wynikiem przełożenia rysunku układających się na wodzie fal na język architektury. Biegnące po obwodzie budynków horyzontalne tarasy o mijających się krawędziach tworzą na kolejnych kondygnacjach galerie widokowe, z których goście hotelowi podziwiać mogą odległy morski horyzont lub poddawać się atmosferze buzującego w dole nadbałtyckiego kurortu.

Prowadzący na molo miejski pasaż z biegnącymi wzdłuż niego lokalami usługowymi, zgodnie z założeniami konkursu, stanowi komunikacyjny i funkcjonalny kręgosłup całego założenia. Pasaż prowadzący na molo w swoim środku ciężkości (na skrzyżowaniu traktów pieszych), rozszerza się tworząc publiczny plac, przy którym zlokalizowano kluczowe usługi. Kolejnym kulminacyjnym punktem pasażu jest publiczny plac, jaki powstanie w bezpośrednim sąsiedztwie wejścia na molo. Wybiegające w morze molo ma dynamiczną formę nawiązującą do estetyki statków. Alternatywą dla zewnętrznego pasażu handlowego jest biegnący równolegle do niego wewnętrzny (a częściowo wychodzący na zewnątrz) pieszy trakt spinający usługi w parterze – łączy on wizualnie i komunikacyjnie lobby obu hoteli oraz hotelowe restauracje.

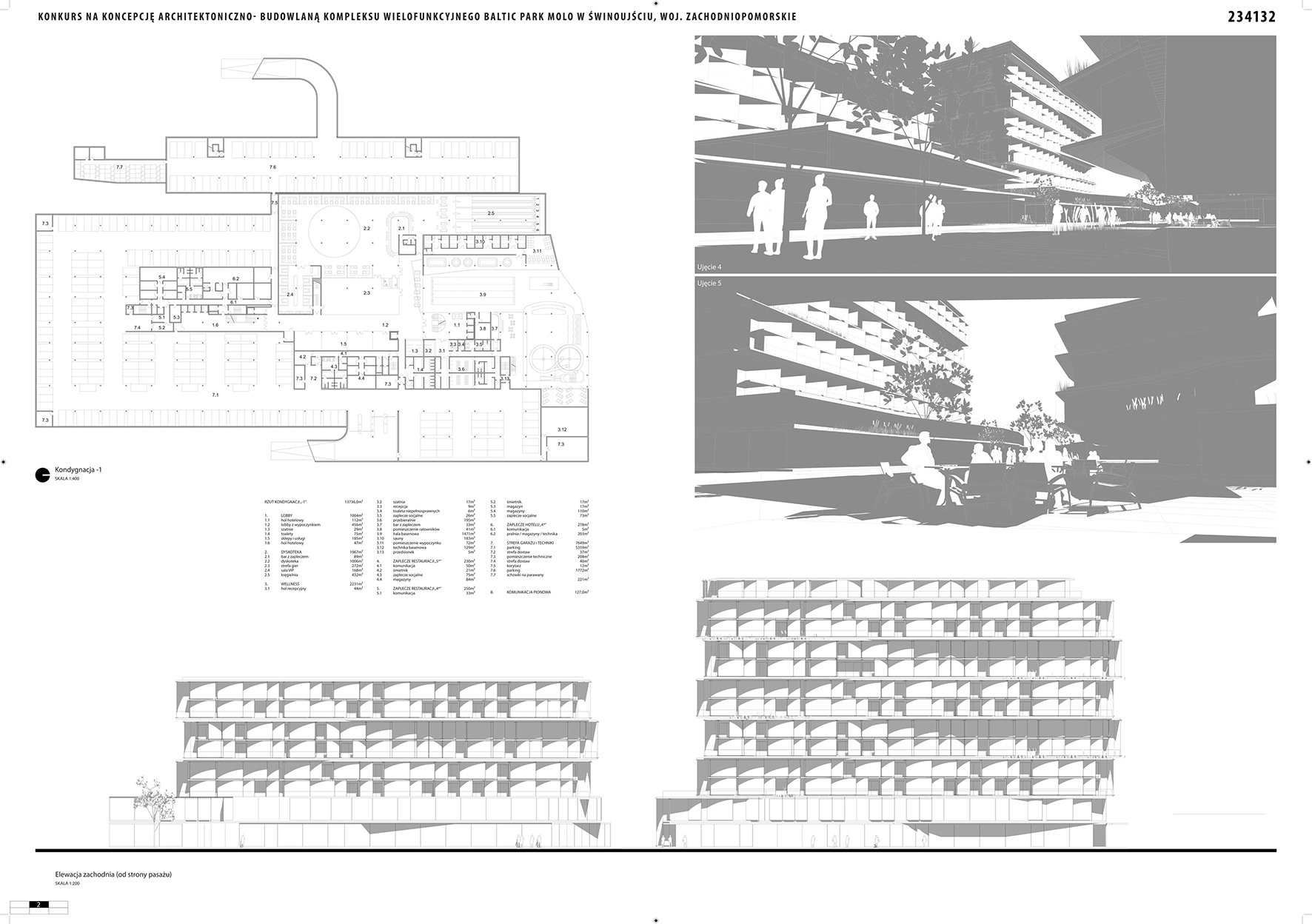
Z tego traktu, zarówno z hotelu cztero -, jak i pięciogwiazdkowego możemy dostać się reprezentacyjnymi klatkami schodowymi (lub niezależnie windą – np. z pokoi hotelowych) do znajdujących się w podziemnej kondygnacji zespołów SPA. Niezależnie do zespołów tych prowadzi wejście dostępne z centralnego pasażu. Ogólnodostępny zespół wellnes zlokalizowany na drugiej kondygnacji hotelu pięciogwiazdkowego dostępny jest z widocznej z różnych stron bo położonej centralnie klatki schodowej. Zlokalizowana w parterze hotelu czterogwiazdkowego główna sala konferencyjno – bankietowa na 1200 osób (posiadająca możliwość podziału na mniejsze sale) z własnym niezależnym wejściem od strony deptaka ulicy Uzdrowiskowej została odsunięta od głównego ciągu handlowego, ustępując miejsca ogólnodostępnym usługom. Posiada ona możliwość przestrzennego połączenia ze znajdującym się w jej sąsiedztwie foyer oraz restauracją. Typowe powtarzalne piętro zaprojektowanego hotelu pięciogwiazdkowego posiada holl z miejscami do siedzenia, 21 pokoi dwuosobowych o podobnym standardzie i 4 pokoje o podwyższonym standardzie – zlokalizowane bezpośrednio naprzeciwko morza. Każdy z pokoi hotelowych posiada indywidualny taras z widokiem na morze z możliwością osłonięcia go za pomocą parawanu (żagla) przed intensywnym wiatrem i słońcem. Typowe powtarzalne piętro hotelu czterogwiazdkowego posiada 28 pokoi dwuosobowych o podobnym standardzie i 1 pokój o podwyższonym standardzie zlokalizowany na narożniku bezpośrednio od strony morza. Każdy z pokoi hotelowych posiada indywidualny taras z widokiem na morze z możliwością osłonięcia go za pomocą parawanu (żagla) przed intensywnym wiatrem i słońcem.


Na najwyższej – trzynastej kondygnacji hotelu czterogwiazdkowego zlokalizowano zwróconą w kierunku morza kawiarnię z widokiem panoramicznym. Projektowane budynki posiadają horyzontalną kompozycje elewacji wzmocnioną oplatającymi budynek liniami tarasów. Mijające się obrysy tarasów dynamizują bryły budynków i swoim charakterem nawiązują do rysunku jaki maluje wiatr na piasku na plaży lub na morzu w postaci fal. Podstawowym tworzywem architektonicznym zmiękczającym projektowane elewacje są impregnowane żagle pełniące na tarasach pokoi hotelowych rolę zaciąganych parawanów chroniących gości hotelowych przed wiatrem, deszczem lub intensywnym słońcem. Każdy taras posiada dwa żagle pozwalające osłonić go z obu stron, częściowo lub nawet całkowicie. Żagle, w różnym stopniu zaciągane na tarasach przez użytkowników tworzą mobilną i w zależności od warunków atmosferycznych zmieniającą się kompozycję elewacji.


Oba hotele opakowane w płócienne żagle mają w dalekiej ekspozycji przywoływać skojarzenia z wielkimi żaglowcami sunącymi wzdłuż brzegu. Żagiel rozpięty jest na przesuwnej i wygiętej po łuku ramie ze stali kwasoodpornej. Żagiel występujący w kilku wymiarach wykonany jest z siatki z włókna szklanego pokrytej teflonem.