
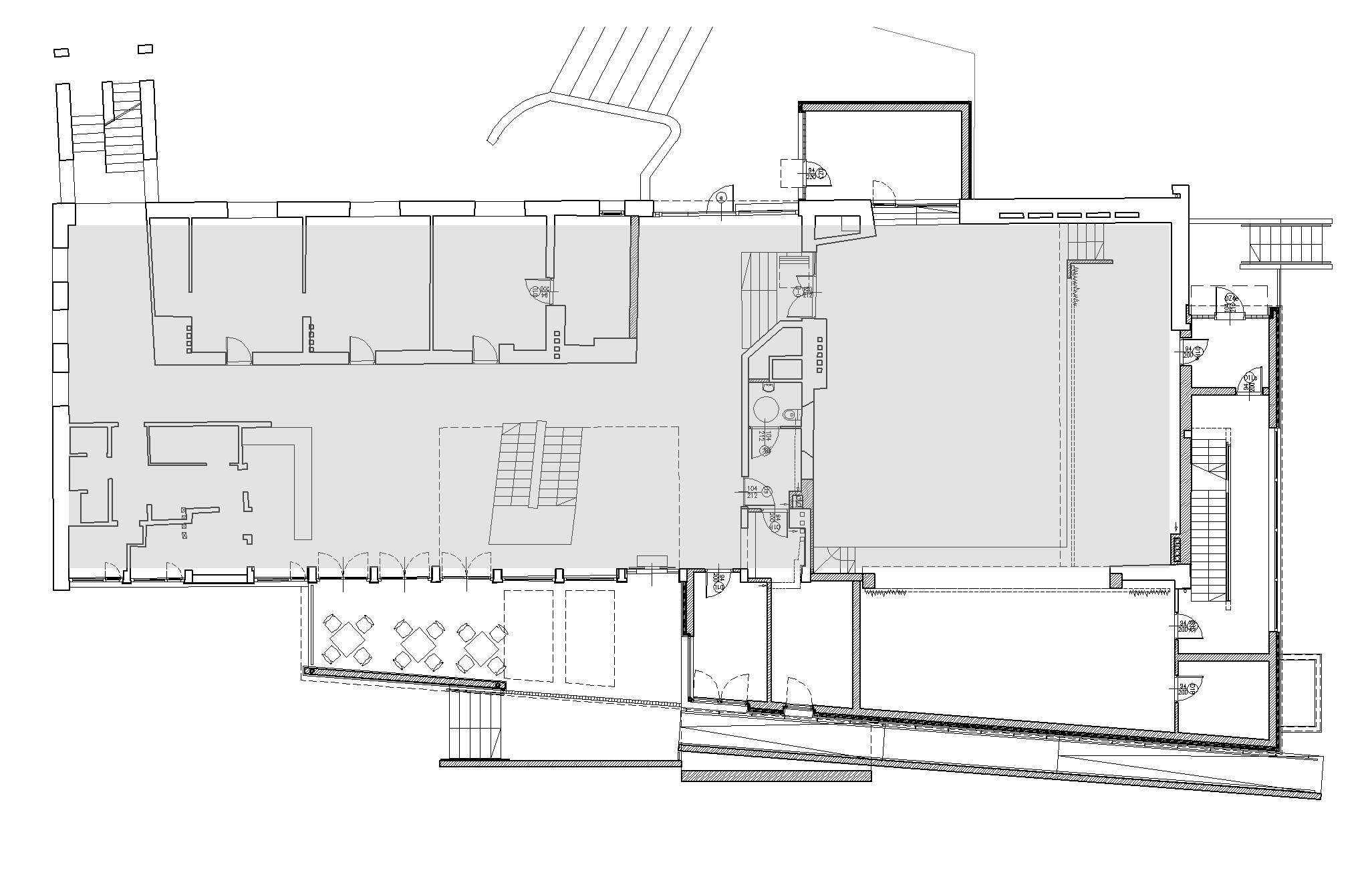
Modernizacja i rozbudowa Centrum Edukacyjno-Kulturalnego “Łowicka” polegająca na powiększeniu sali widowiskowej, sali baletowej, biur i towarzszących im powierzchni pomocniczych.




W projekcie całkowitej zmianie uległa strefa wejściowa do budynku m.in. powstał taras i rampa dla osób niepełnosprawnych. Konstrukcja i elewacje południowej części budynku zostały przebudowane. Sala widowiskowa zyskała możliwość elastycznego podziału dzięki wprowadzeniu przesuwnej ściany wachlarzowej.

.