
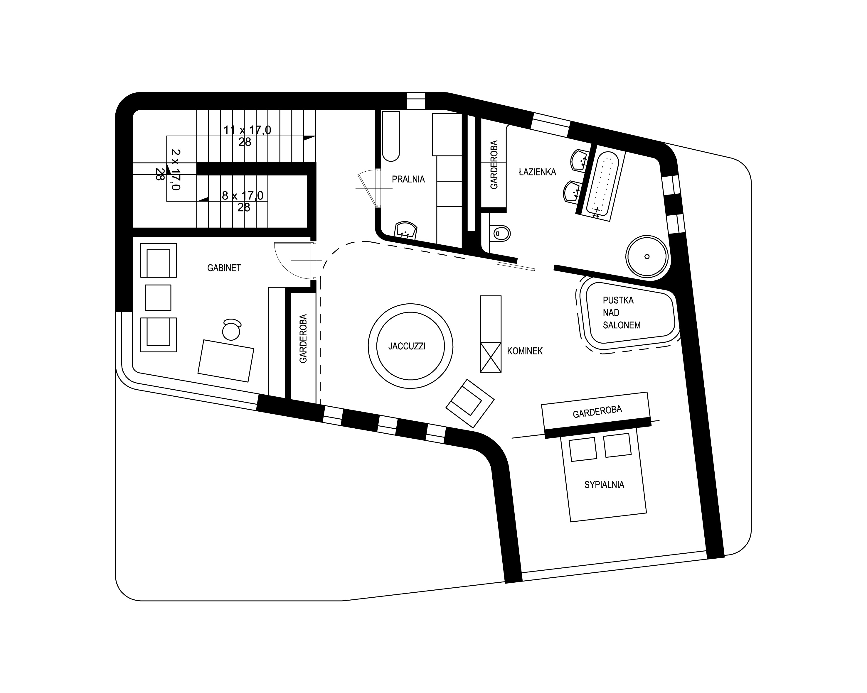
Opracowana koncepcja dotyczy budynku mieszkalnego w Gdyni w rejonie Kamienna Góra. Dom składa się z trzech niezależnych mieszkań ze wspólnym garażem w części podziemnej.
Wyjściowym założeniem dla formy budynku było nawiązanie do klimatu gdyńskiego modernizmu lat trzydziestych z jego dynamicznymi formami inspirowanymi statkami. Budynek ma formę wycofujących się względem siebie pięter w układzie tarasów podążających za spadkiem skarpy. Akcentem kompozycyjnym dla całości jest wysunięta w ostatniej kondygnacji „tuba” sypialni w kierunku widoku na Gdyński port. Na wszystkich kondygnacjach mieszkańcy mogliby korzystać z obszernych tarasów i balkonu z widokiem na morze.

